Producto | Columnas para alumbrar

Columnas Cayca, de Dismet

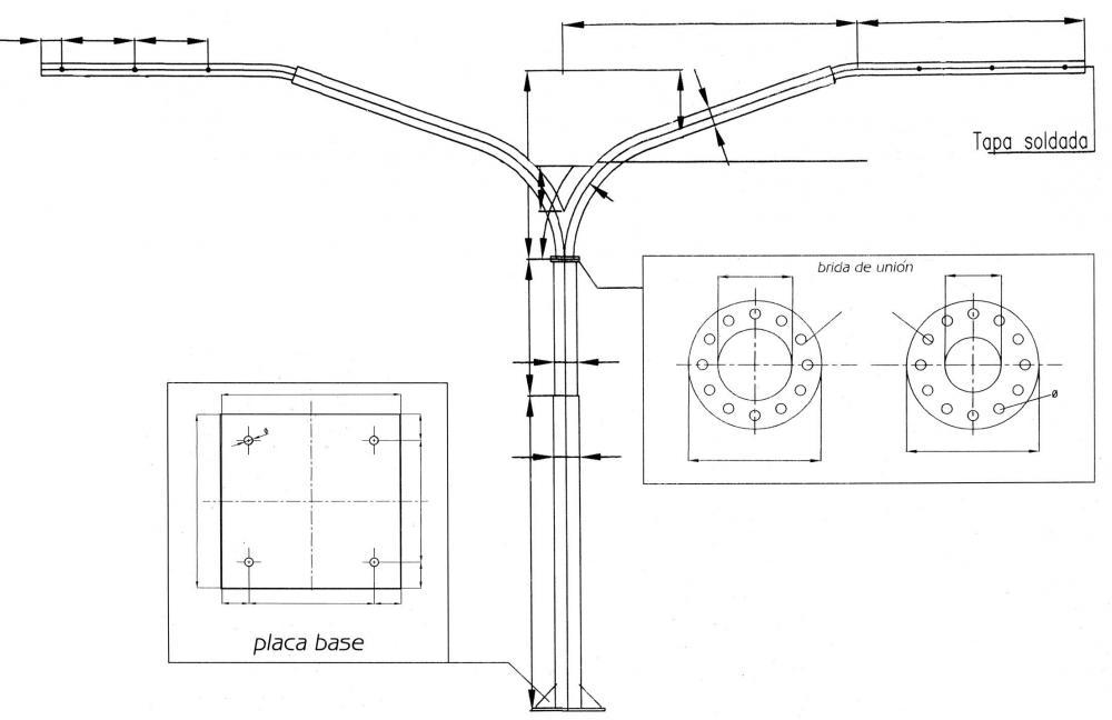
Las columnas para el alumbrado de la firma Dismet, más conocidas por el nombre de su marca, Cayca, están construidas con caños de acero en tramos de distintos diámetros, según su diseño y requerimiento, con brazos curvos, rectos, simples, dobles, múltiples, fijos, desmontables, según pedido. Se caracterizan por su sistema de unión entre caños: a los mismos se les realiza un abocardado en cierre y otro en forma de copa en cada extremo por lo que, luego de ejecutada la soldadura de unión por sistema MIG, es posible un empotramiento perfecto, sin necesidad de cuñas ni botones de soldaduras. Esta característica confiere a las columnas una resistencia estructural inmejorable, y garantiza una larga vida útil. La división de columnas para alumbrado se presenta en tres subdivisiones:

  • Línea urbana
  • Línea deportiva
  • Línea vial

Línea urbana

Las columnas de la línea urbana se construyen según especificaciones del cliente. Esta sección incluye también las columnas ornamentales para paseos peatonales, plazas y patios, según sus especificaciones, que pueden verse en muchos lugares de Argentina y Chile, como la peatonal de Mar del Plata, paseos en San Luis o en plazas, como la San Martín, en Venado Tuerto.

Línea deportiva

A la iluminación en eventos deportivos le atañen normas específicas de estructura y seguridad que la empresa cumple al pie de la letra. Las columnas se pueden colocar tanto dentro como fuera de un campo de juego, también en anfiteatros y otros espacios destinados a eventos públicos.

Línea vial

Las columnas Cayca para la iluminación de autopistas, rutas, caminos y accesos pueden encontrarse en todo el país, ya que su estructura ha probado ser beneficiosa a la hora de cumplir normas de seguridad y calidad sin desatender el aspecto visual.

Dismet es en la actualidad un fabricante local de columnas para transporte (energía y comunicación), iluminación (vial, deportiva y urbana) y señalización (vertical y luminosa), ubicada en la ciudad de Venado Tuerto, en la provincia de Santa Fe. En actividad desde 1974, comenzó con la construcción de columnas en 1993, gracias a las relaciones contractuales con empresas e instituciones de la provincia de San Luis.
La empresa fue afianzando su posición en el mercado y en 1999 llegó a instalar 24.000 columnas en todo el país, en lugares tan distantes como Tucumán, Catamarca, Tierra del Fuego, Mendoza y Buenos Aires.
En el año 2004, comenzó con las pruebas de certificación de todos sus procesos de fabricación y comercialización con el objetivo de implementar la norma ISO 9.000.
Hoy en día, con una capacidad productiva de tres mil columnas mensuales, la empresa que dirige la familia Pandrich es la principal proveedora de columnas metálicas en el mercado nacional.

Dismet

 

Todas las publicaciones de: 
Publicado en: 
Número: 
Mes: 
Año: